מתחם הכרמלית תל אביב
key facts
מתחם של 2 מגדלים על קו החוף ברחוב הרברט סמואל בתל אביב מצפון לגן צ'רלס קלור.
 2 המבנים מלבניים צרים ומדורגים – כ-20 קומות בחלק הגבוה ו-5 קומות בנמוך, כאשר החלק הגבוה במבנה האחד ממוקם מול החלק הנמוך בשני ולהיפך. במצב זה האוורור הטבעי והחשיפה לשמש הינם מיטביים.
 החזית הצרה של המבנים בהפניה מזרח-מערב -  מונעת מצב של חומה חוסמת את הרוח המערבית ובהפניה האופטימלית אקלימית של החזיתות הארוכות לצפון ולדרום.
 המרחק בין המבנים מאפשר קו מבט נקי לים התיכון מכל יחידות הדיור וחדרי המלון.  
קומות
ייעודי הבניין
פרטי הפרויקט
מיקום : תל אביב
יזם : קבוצת אביב
אדריכל : משה צור אדריכלים
פעילות WAWA : ייעוץ בניה ירוקה, יעוץ תרמי, ניתוח רוחות ממוחשב, יעוץ איכות סביבה
קטגוריית בינוי: בית מלון, מסחר, מגורים ומבנה ציבור
אתגרים
מיקום הפרויקט בקו המבנים הראשון הפונה לים יחד עם  גובה המבנים – כ-80 מ-   והמערך ההדדי של 2 מבנים מאורכים מקבילים  התוחם את אזור הפיתוח היחודי של הפרויקט , מייצר אתגר של התמודדות עם הרוחות החזקות המתפתחות במפלס הפיתוח  - הן הכלוא בין המבנים והן החזיתי הפונה לים.
 אנו בחנו את התנהלות הרוחות, איתרנו את הנקודות הבעייתיות ומצאנו את הפתרונות המתאימים למיתון הרוחות הנדרש לקבלת תנאי נוחות במרחב הציבורי.
זאת לצד בחינת נושא החשיפה לשמש והכוונת תכנון הפיתוח בתואם לתוצאות. 
 
ערך מוסף
הפרויקט המתוכנן בשלב הראשון הינו המבנה הצפוני במתחם זה. הפרויקט כמכלול מתוכנן בתואם לעקרונות ביננו ערים בר קיימא :
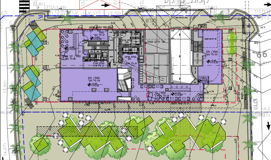
- קומת קרקע המגדירה את חזית הרחוב הינה ללא גדרות, עם שימושים ציבוריים – מסחר, לובאי בתי המלון והיא בעלת שקיפות, וכן בנסיגה מהקומות העיליות ברחובות הראשיים – הירקון והרברט סמואל המייצרת קולונדה רחבה  5-7 מטר  - מעבר מקורה רציף להולכי הרגל. 
 המסחר פונה הן לרחוב הירקון והן לכיכר הפנימית המקשרת בין הרברט סמואל ממערב לירקון ממזרח והן לרחוב דניאל שמצפון.
- המבנים מאופיינים בערוב שימושים - מסחר ושטחי ציבורי (גלריה) בקומת הקרקע, קומות מלון וקומות מגורים.
- פיתוח אינטנסיבי סביב הפרויקט עם דגש על שטח זיקת ההנאה בין שני המבנים מייצר מרחב ציבורי נעים ומזמין לשהייה ולפעילות. הפיתוח מיצר ריבוי מעברים חוצים מזרח-מערב התורמים לחיזוק הקישוריות.
- הפריקה והטעינה והכניסה לחניון התת קרקעי מתאפשרת רק מהרחוב המשני – רחוב דניאל שמצפון, ונמנעת ברחובות הראשיים, ובכך מאפשרת רצף פעילות אופטימלי להולכי הרגל ברחובות הראשיים, כאשר גם ברחוב דניאל נעשה מאמץ תכנוני לצמצם את אלמנטי השרות (חניה, פריקה, אשפה) ולמקסם את אורך החזית המסחרית הפונה לרחוב. 
 המדרכות סביב רחבות - מ- 6 עד 14 מ ברחוב הרברט סמואל הפונה לים, שם מתוכנן פיתוח אינטנסיבי המייצר אשור פעילות איכותי שמרחב הציבורי.
- החניון משותף ל-2 המבנים ומאפשר מערכות משותפות, כאשר גג החניון בעומק של 150 ס"מ מתחת לפני הפיתוח, ובכך מתאפשרת נטיעת עצים בוגרים והתפתחות מיטבית שלהם, למטרות נוי, אקלימיות – הצללה וקירור האזור, וכאמצעי למיתון רוחות.
שילוב בין ישום עקרונות בינוי ערים בר קיימא כמפורט לעיל - תכנון ירוק של המרחב הציבורי, לבין מיקום הפרויקט בשוליים של אזור עירוני שנחשב רב פוטנציאל (אך עדיין נחות עקב סמיכות לחניון שוק הכרמל, והיותו הפריפריה הדרומית היותר מוזנחת של כרם התימנים) וכל זאת במעטפת של אדריכלות מרשימה במיוחד מהווה מקפצה להתחדשות עירונית אגרסיבית ואופטימלית של האזור בואכה יפו, והשגת LANDMARK אורבני המייצר את המשכיות האיכותיות של הטיילת - מרכיב מרכזי בצירי הפנאי של המטרופולין.










































